Realisiertes Architektenhaus
← zurückHamburg - Duvenstedt
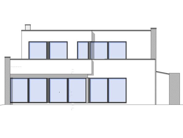
Ein großzügiger Cubus mit Tiefgarage
Ein Haus bauen mit Breyer & Seck Bau
Die Breyer & Seck Bau GmbH ist der Spezialist für individuelle und massiv gebaute Häuser im Großraum Hamburg und Umgebung.
Als inhabergeführtes Unternehmen liegt uns der persönliche Kontakt zu unseren Kunden am Herzen. Eine enge Zusammenarbeit bildet das Fundament für Ihr erfolgreiches Bauprojekt.
Hier sehen Sie eines unserer Referenzhäuser und können sich anhand der Bilder selbst von der Qualität unserer Leistungen überzeugen.
Hausbau ist und bleibt Vertrauenssache!

